Afin de mettre en valeur le processus d’humanisation du chien qui paraît s’ancrer dans l’évolution des relations utilitaires, un centre pour chien a été conçu où celui-ci est l’usager principal et où le maître est considéré comme accompagnateur. Pour concevoir un centre réellement adapté à l’usager, il faut d'abord percevoir les volumes et la ville du point de vue du chien pour déterminer les éléments marquants. Le centre est donc conçu pour lui créer un espace, une ville à son échelle, rassemblant ses différentes réalités dans un environnement restreint selon trois principes clés : l’urbanisme, le mouvement et le point de rassemblement.
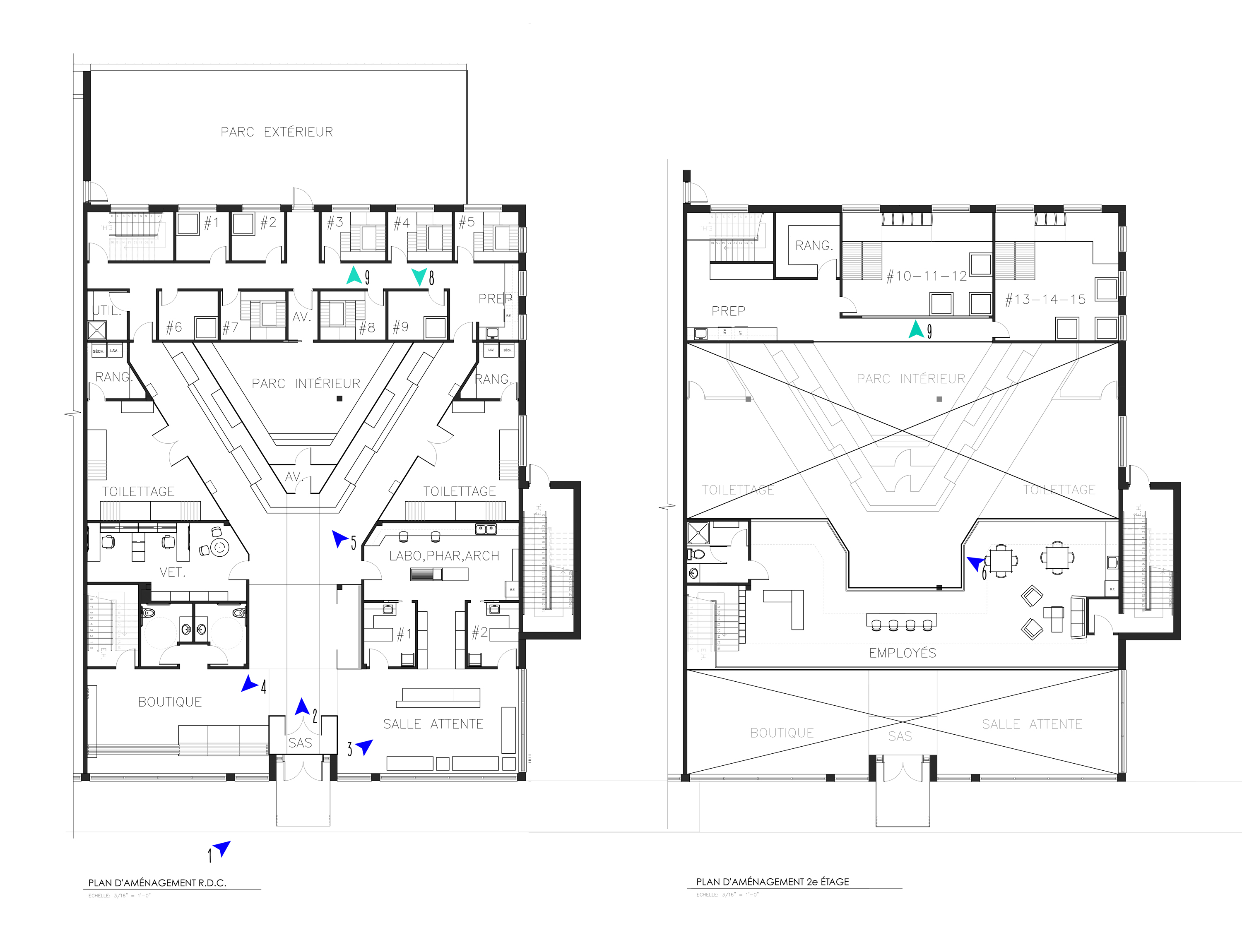
Situé sur le boulevard Marcel-Laurin devant le quartier Bois-Franc, le centre comprend deux salles d’examen ainsi qu’une boutique d’accessoires canins d’où il est possible, pour les employés, de monter à l’étage dans l’espace à aire ouverte qui offre une excellente vue périphérique du centre. De l’entrée, une bande provenant de l’extérieur mène au point de rassemblement, soit le parc intérieur entouré de places assises permettant au maître d’observer son chien. De part et d’autre du parc, on retrouve des zones de toilettage en libre-service avec supervision des employés si désiré. Finalement, le centre comprend une pension offrant trois types de chambres : pour les chiens sociables, calmes ainsi que les plus excités, tout pour les accommoder dans leur nouvelle demeure.










